Дома под ключ в Краснодаре
Отзывы из Яндекс Карт
4.9
113 отзывов
Дополнительные услуги 88%
2 154 оценок
Комплектации 89%
1 535 оценок
Планировки 90%
2 484 оценок
Проекты 93%
2 231 оценок
С
Вадик П.21.04.2026 г.
Сдался уже искать идеальную компанию, выбрал «БрусДома» для дома 10х12 с цоколем и котельной, строили зимой, раствор мёрз, но они использовали добавки, стены ровные, претензий нет.
С
Венедикт Кондратьев15.02.2025 г.
Прошлой зимой заказал баню, в этом году уже паримся с друзьями — всё стоит ровно, не повело, не перекосило, дерево выглядит как новое.
Отзывы из Google Карт
4.8
68 отзывов
Дополнительные услуги 88%
2 154 оценок
Комплектации 89%
1 535 оценок
Планировки 90%
2 484 оценок
Проекты 93%
2 231 оценок
С
Женя Шубин29.03.2026 г.
Заказал строительство зимнего дома 7,5х9 из профилированного бруса. Привезли материал вовремя, собрали коробку за месяц. Под конец выяснилось что забыли проложить изоляцию под полом первого этажа — спасибо я сам проконтролил. Доделали.
С
Арсений Кононов08.01.2026 г.
Заказывал небольшую баню с комнатой отдыха. В процессе захотелось поменять планировку — увеличить предбанник. Мне оперативно пересчитали стоимость, она изменилась незначительно, и внесли изменения в проект. Обошлось без нервов.
С
Дима Павловский24.04.2025 г.
С момента начала строительства прошло уже полгода, и за это время в доме не появилось ни одной трещины, ни одного сквозняка, что говорит о фундаментальном подходе к работе.
Отзывы из 2гис
4.9
45 отзывов
Дополнительные услуги 88%
2 154 оценок
Комплектации 89%
1 535 оценок
Планировки 90%
2 484 оценок
Проекты 93%
2 231 оценок
С
Слава Петров11.05.2026 г.
После новогодних праздников начали строить. Бригада работала даже в морозы, с перерывами на прогрев. Дом сдали в марте, как и обещали. Отделка внутри немного затянулась, но это уже по нашей вине — не могли выбрать материалы.
С
Пелагея09.02.2026 г.
Брала у них бытовку переделать под гостевой домик, размер 4х4. Смешной проект, но сделали душевно, даже маленькое крылечко прикрутили. Чек оставили адекватный, я довольна как слон, хотя внутри уголки не везде прокрашены.
С
Всеволод Ю.25.08.2025 г.
Отдельная благодарность за качественное утепление. Использовали эковату, которую задули под давлением. Стены получились монолитными, без мостиков холода. В доме тихо и уютно, несмотря на ветреную погоду на улице. Счета за отопление приятно радуют своей скромностью.


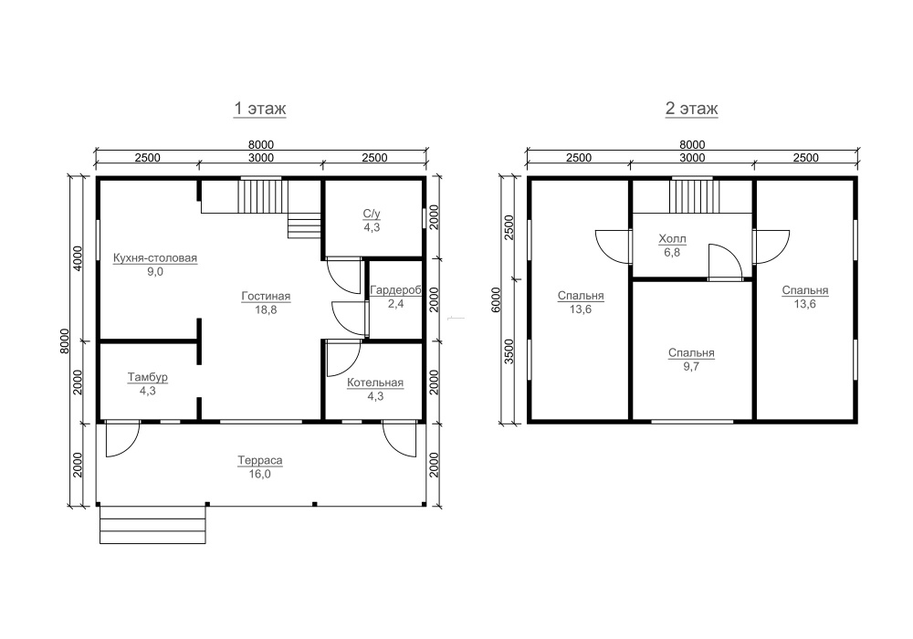
Проект №82 Каркасный дом 8х8

каркас из строганой доски
Создайте свой план для этого проекта
и отправьте его нам на расчет в один клик.
Каркасный дом (150 мм) 8х8 Толщина утепления 150 мм 3213700 Заказать
Каркасный дом (200 мм) 8х8 Толщина утепления 200 мм 3423700 Заказать

Доставка включена в стоимость дома!

Чтобы адаптировать уже готовый проект и получить свою личную планировку, воспользуйтесь нашим планировщиком.

С использованием планировщика можно сделать подходящие схемы, чертежи, планы, эскизы дома с мансардой, эркером, с нужным количеством комнат. В конечном итоге вы получите прекрасный проект, полностью отвечающий вашим потребностям.

Вы сможете подобрать вид кровли. Крыша может быть четырехскатная, двускатная и вальмовая. Двухскатную считают самой востребованной в малометражных постройках.

Востребованные сегодня размеры домов: мини - до 50м2 (в большинстве случаев, 1 этажные); компактные - от 70 до 100м2 (обычно 2-этажные); большие - от 150 м2 и больше.

Строим дуплексы - большие каркасные дома с двумя входами, рассчитанные на проживание нескольких семей. Эти дома предполагаются для двух хозяев и разделены на две половины, для каждой половины с отдельным входом.


Наши работы

Перейти в галерею


Комплектация

Площадь застройки: 64 м2
Длина: 8 м
Ширина: 8 м
Общая площадь: 86.8 м2
Исполнение Под ключ (с отделкой)
Фундамент Свайно-винтовой или ж/б сваи (рассчитываются отдельно).
Гидроизоляция фундамента Рубероид в два слоя.
Основание (обвязка) Из обрезного бруса 150х150 мм. 150х200 мм. согласно выбранной толщине утепления. Торцевая доска строганая 45х145/45х195+/-5 мм. согласно выбранной толщине утепления. Обработка антисептиком.
Цокольное перекрытие Строганая доска камерной сушки 45х145/45х195+/-5 мм. с шагом 590 мм. Обработка антисептиком.
Пол черновой Обрезная доска камерной сушки 20х100 мм.
Влаго-ветрозащита чернового пола Мембрана Ондутис А100.
Внешние стены Стойки каркаса из строганой доски камерной сушки 45х145/45х195+/-5 мм. с шагом 590 мм. Верхняя двойная и нижняя обвязки из строганой доски камерной сушки 45х145/45х195+/-5 мм. Разгрузочный ригель из строганой доски 45х145+/-5 мм. Укосины из строганой доски 20х95 мм.
Перегородки Стойки каркаса из строганой доски камерной сушки 45х95+/-5 мм. с шагом 590 мм. Верхняя двойная и нижняя обвязки из строганой доски 45х95+/-5 мм. Разгрузочный ригель из строганой доски камерной сушки 45х145+/-5 мм. Укосины из строганой доски камерной сушки 20х95 мм.
Сборка каркаса На гвозди.
Высота от пола до потолка Дом одноэтажный: 2,5 м. Дом с мансардой: 1-ый этаж- 2,5 м.
2-ой этаж (мансарда)- 2,3 м.
Дом в полтора и два этажа:
1-ый этаж 2,5 м.
2-ой этаж 2,4 м. в полутораэтажном доме
2,5 м. в двухэтажном доме.
Внешняя отделка стен Имитация бруса камерной сушки, сорт АВ, толщиной 17 мм. Монтаж через строганый брусок камерной сушки 45х45+/-5 мм. (вентилируемый фасад). Влаго-ветрозащитная мембрана- Ондутис А100.
Внутренняя отделка стен, перегородок Евровагонка камерной сушки, сорт АВ, толщиной 12,5 мм. по строганой рейке 20х40+/-5 мм. либо ГКЛ 12,5 мм.
Отделка потолка Евровагонка камерной сушки, сорт АВ толщиной, 12,5 мм. по строганой рейке 20х40+/-5 мм. либо ГКЛ 12,5 мм.
Пол чистовой Шпунтованная доска камерной сушки толщиной 35-36 мм. сорт АВ. по строганой рейке 20х40+/-5 мм. либо шпунтованная ДСП 16 мм. по разряженной обрешётке из строганой доски камерной сушки 20х95+/-5 мм.
Утепление (пол, потолок) Минеральная вата Knauf 150/200 мм. согласно выбранной толщине утепления.
Утепление стен Плитный утеплитель Rockwool, толщиной 150/200 мм. согласно выбранной толщине утепления.
Звукоизоляция перегородок Плитный утеплитель Rockwool, толщиной 100 мм.
Пароизоляция (стены, перегородки, пол, потолок) Плёнка Ондутис R70. Дополнительная герметизация нахлёстов/примыканий пароизоляционной плёнки клейкой лентой Delta.
Окна Двухкамерные стеклопакеты ПВХ белого цвета, профиль 60 мм. В комплекте: отливы, подоконники, москитные сетки.
Двери Входная- металлическая, утеплённая (Россия). Межкомнатные- филёнчатые.
Наличники на окна и двери Наличник деревянный, строганый, камерной сушки 70-90 мм. с двух сторон.
Лестница (при наличии второго этажа) Деревянная, одно или двухмаршевая. Перила- заводские резные, балясины- заводские точеные, устанавливаются стартовые точёные столбы. Ступени 40х200 мм. Тетива лестницы- 90х140 мм.
Крыша Двускатная, ломаная или вальмовая в соответствии с проектом.
Стропильная система Выполнена из строганой доски камерной сушки 45х145/45х195+/-5 мм. Шаг установки стропил 590 мм.
Обрешётка Выполняется из строганой доски камерной сушки толщиной 20х95+/-5 мм. Шаг крепления обрешетки 350 мм. Контробрешётка выполняется из строганого бруска камерной сушки 45х45+/-5 мм. Крепится по стропилам (вентиляционный зазор).
Подкровельная мембрана Ондутис А100
Кровельное покрытие (на выбор) Металлочерепица 0,45 мм. Цвет на выбор.
Фронтоны (при наличии) Каркас из строганой доски камерной сушки 45х145/45х195+/-5 мм. Обшиваются имитацией бруса камерной сушки, сорт АВ, толщиной 17 мм. Монтаж через строганый брусок камерной сушки 45х45+/-5 мм. (вентилируемый фасад). Влаго-ветрозащитная мембрана- Ондутис А100. Монтаж вентиляционных решёток.
Свесы крыши Ширина 400 мм. Подшиваются вагонкой камерной сушки, сорт АВ.
Терраса/балкон (при наличии) Устанавливаются опорные столбы из строганного бруса камерной сушки 140х140 мм.
Отделка потолка террасы/балкона Евровагонка камерной сушки толщиной 12,5 мм. сорт АВ.
Пол террасы/балкона Шпунтованная доска камерной сушки толщиной 35-36 мм. сорт АВ.
Ограждение террасы/балкона Перила- строганая доска. Балясины- точеные, фигурные. Либо ограждение в скандинавском стиле. Устанавливаются ступени у входа.
Допуск на геометрические параметры Составляет +/- 50 мм по длине с каждой стороны.
Допускается стыковка имитации бруса, вагонки и половой доски По всему периметру стен дома (если ширина и длина дома более 6,0 метров). Вагонки и доски пола в каждой отдельной комнате.
Допуски по имитации бруса, вагонке, доске +/- 5 мм.
В стоимость включена Доставка комплекта материала в радиусе 500 км. от г. Пестова Новгородской области и сборка дома на вашем участке.
Гарантия 5 лет.
Бытовка строительная 2,0х3,0 м. каркасно-щитовая. Стоимость 23000 руб. Остаётся на участке Заказчика.
Туалет 1,0х1,0 м. каркасно-щитовой. Стоимость 12000 руб. Остаётся на участке Заказчика.
Генератор Стоимость аренды на весь срок строительства 15000 руб. ГСМ за счёт Заказчика.

Сооружение каркасных домов может осуществляться в нескольких видах: полностью под ключ и под усадку, когда дом отстаивается в течение определенного времени.

Зимой специалисты советуют строить дом в холодную погоду, чтобы каркас не успел промокнуть, в летнее время - не под дождем.

Подходящими для сада или дачи являются экономичные домики на винтовых сваях, у нас вы увидите одноэтажные и полуторатажные типы домов.

В том случае если дом будет строиться для ПМЖ (постоянного проживания), рекомендуем очень теплые дома на ленточных и плитных фундаментах.

Мы предлагаем два варианта толщины утепления: 150 мм и 200 мм. Каркасные дома с толщиной утеплителя 200 миллиметров получаются теплее, но несколько дороже.

Дополнительные услуги


Дом с каркасной структурой большой террасой, согласно эскизу 82 полутораэтажный с теплоизолированной двускатной строительной конструкцией крыши, может похвастаться экологической чистотой, в связи с использованием ОСП-плит, ваты базальтовой и минеральной, что обеспечивает замечательную морозостойкость, идеальный микроклимат в доме. Размеры помещения составляют 8х8 м., общая жилплощадь - 86.8 кв.м.. Наша компания в кратчайшие сроки создаст для вас дом с каркасной структурой по индивидуальному или типовому проекту в Краснодаре в необходимое вам время года и на выбранном вами варианте грунта.

Популярные проекты


Дома из бруса 6х8 Двухэтажные каркасные дома Бани из бруса 6х9
хит продаж
Тип: с большой террасой
Общая площадь: 2
3500360
от 3333700
хит продаж
Тип: с большой террасой
Общая площадь: 2
4519700
от 4304500
хит продаж
Тип:
Общая площадь: 2
2848520
от 2712900
Дома из бруса

Заказать или задать вопрос



Заказать или задать вопрос

Заказать звонок